+1
Cébazat (63118)

Maison 6 pièce(s) 4 chambre(s) 106.31 m²

1
1
Nous consulter
Réf 221/10-1158
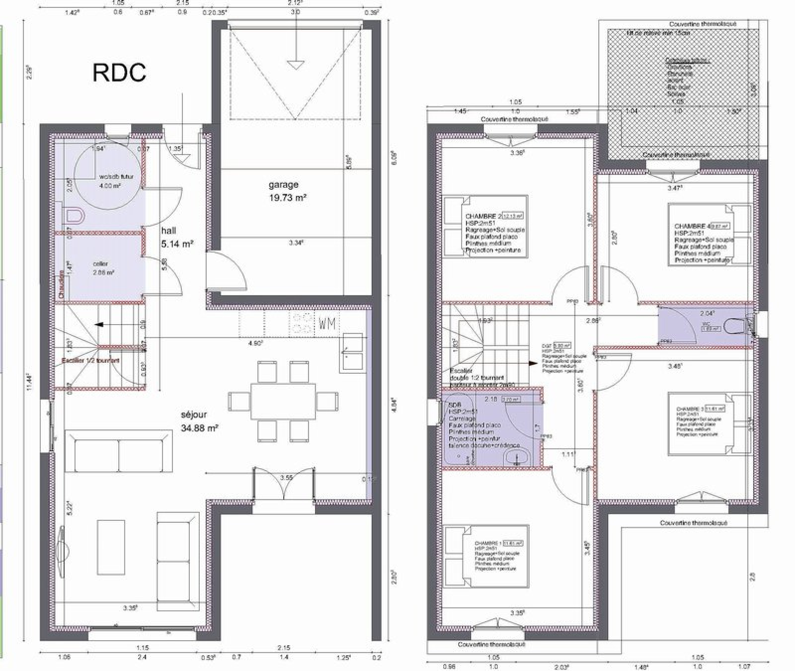
R&M Immobilier vous propose à CEBAZAT, ce projet de maison neuve offrant au rez-de-chaussée, hall d'entrée, cuisine ouverte sur séjour, toilettes et cellier. Al'étage, vous profiterez de quatre chambres, une salle de bains et un second W.C.. ,Un garage attenant et un parking privatif complètent cet ensemble situé sur un terrain totalement clos. ,A découvrir!!!! ,Prix promoteur et frais de mutation réduits. ,Démarrage des travaux septembre 2017, contactez-nous pour plus de détails!!!!

Bilan énergétique

Diagnostics énergetiques
Consommation énergétique
A B C D E F G
Emission de gaz à effet de serre
A B C D E F G
DPE ANCIENNE VERSION
A propos de ce bien Caractéristiques de ce bien
  • Surface 106,31 m²
  • 4 chambre(s)
  • 1 salle(s) de bain
  • Chauffage autre : autre (autre)
  • 1 garage(s)

Composition

Composition de ce bien

Rez-de-chaussée

  • Parcelle 263 m²
  • Garage 17.45 m²
  • Hall 5.45 m²
  • W.C. 3.81 m²
  • Cellier 2.75 m²
  • Cuisine ouverte sur salon 37.63 m²
  • Terrasse 0 m²

Etage 1

  • Dégagement 5.45 m²
  • Chambre 12.49 m²
  • Chambre 10.21 m²
  • Chambre 11.28 m²
  • Chambre 11.34 m²
  • W.C. 1.84 m²
  • Salle de Bain 4.06 m²

Simulation

Calcul des mensualités
* Champs obligatoires
R&M IMMOBILIER Agence